
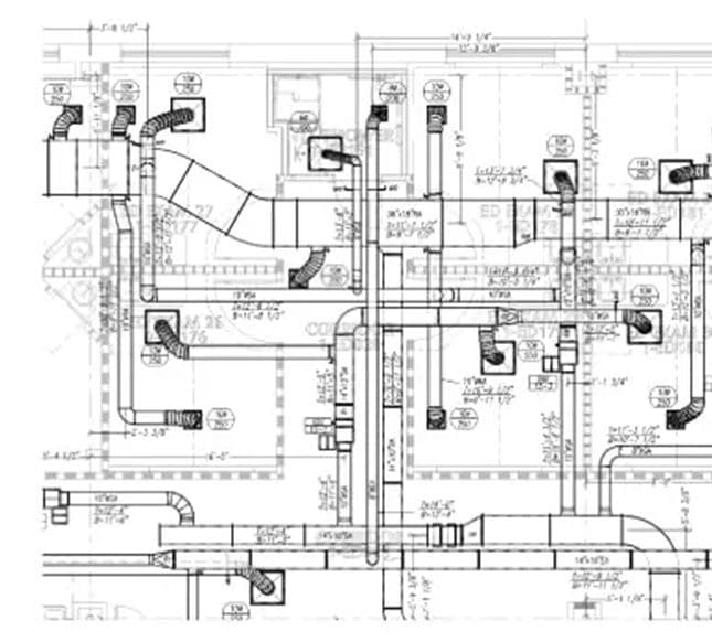
Turning design intent into buildable realities with coordinated shop drawings
QeBIM offers end-to-end Shop Drawing Serviceswith an unwavering focus on precision, compliance, and seamless multidisciplinary coordination. Whether it’s complex MEP Shop Drawing Services, highly detailed Steel Shop Drawing, Technical Drawings or Customized Millwork Drawings, our experts convert design intent into fabrication-ready details that reduce onsite errors and ensure hassle-free execution.
With 45% fewer site reworks, up to 35% faster fabrication timelines and a 98% first-time approval rate from consultants, our BIM-integrated shop drawing workflows ensures that the projects stays on schedule and within budget. From pre-construction to final installation, our team supports contractors and fabricators with documentation that accelerates approvals and ensures field constructability.
25+ Years
12500+
25+
1500+
Comprehensive shop drawing solutions for every trade
MEP Shop Drawing Services
Steel Shop Drawing Services
Millwork Shop Drawings Services
Architectural & Structural Shop Drawings
As-Built Shop Drawings
Technical expertise meets dependable project delivery
BIM-integrated multidisciplinary coordination for clash-free execution
Adherence to global building and fabrication standards
Fast turnaround with accuracy that reduces RFIs and approval delays

Scalable team for small, mid-sized and mega-projects
Transparent communication with weekly progress reports
Advantages of Shop Drawings
- Minimizes construction errors and onsite misinterpretations
- Ensures proper execution aligned with the design intent
- Accelerates approvals from consultants and project owners
- Reduces fabrication waste and unexpected material costs
- Enhances communication between the designers, contractors and manufacturers

Advanced tools for advanced-level detailing









Supporting diverse sectors with tailored shop drawing expertise
Have any questions? here some answers?


